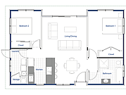
Build plan inclusions
When you build a Clever Living Co., home with Kiwi Country Construction, your new home will be completed with:
Longrun roofing
Thermally broken double-glazed Aluminium Joinery
Heat pump
Kaboodle kitchen
Haier kitchen appliances
European designed tapware
Quality bathrooms
NZ wood products H3.2 Plyfloor


1
1
















